Capannone in Vendita
Monsampolo del Tronto - Proponiamo Vendita Fabbricato indipendente della superficie di 600 mq insistente su un lotto di terreno di 3.000 mq
Si tratta di una palazzina costituita da locali adatti ad attività artigianale e/o industriale, uffici, mensa, abitazione custode a servizio dell'attività - destinazione d'uso (D/7).
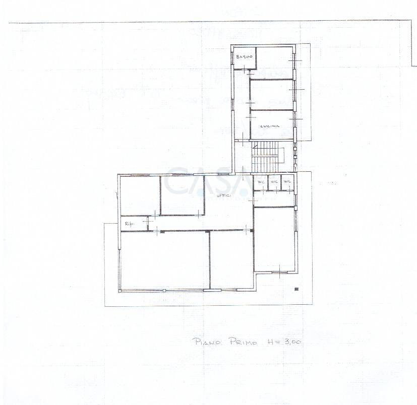
Nella zona Industriale a circa 2 Km dal casello Autostradale di San Benedetto del Tronto è ubicata questa palazzina disposta su due livelli di circa 300 mq ognuno così costituiti:
- piano terra con n. 2 locali ufficio, due ampi locali destinati a Laboratorio o mensa e magazzino, adeguati allo svolgimento di attività di deposito o di lavorazione oltre a servizi igienici,
- piano primo con un'ottima versatilità che attualmente combina una zona lavorativa professionale dotata di n.5 uffici, per la maggior parte dotati di aria condizionata e n. 3 servizi igienici oltre ad un confortevole appartamento trilocale.
Possibilità di rimodulare gli spazi in base alle esigenze lavorative.
L'immobile risulta recintato con ampia zona di parcheggio.
Nel 2026, Monsampolo del Tronto beneficia delle agevolazioni previste per l'inclusione delle aree industriali delle Marche nella ZES Unica Sud Italia. Le imprese operanti o che si insedieranno nel territorio possono accedere a un pacchetto di incentivi fiscali e burocratici significativo, prorogato dalla Legge di Bilancio per il triennio 2026-2028.
Ecco i principali vantaggi previsti per la ZES Monsampolo del Tronto nel 2026:
Credito d'Imposta Investimenti (fino al 35%): È il principale beneficio, riconosciuto per l'acquisizione di beni strumentali, macchinari, impianti, attrezzature, terreni e fabbricati destinati a nuove strutture produttive o al potenziamento di quelle esistenti. Il credito d'imposta è confermato per gli investimenti effettuati dal 1° gennaio 2026 al 15 novembre 2028.
Riduzione del Carico Fiscale: Le aziende in area ZES possono beneficiare di una riduzione delle imposte dirette, facilitando il reinvestimento delle risorse in crescita e innovazione.
Semplificazioni Amministrative: L'accesso alla ZES permette di usufruire di procedure autorizzative più snelle, con la possibilità di ottenere "Autorizzazioni Uniche" telematiche che sostituiscono numerosi titoli abilitativi, riducendo i tempi di attesa burocratici a circa 60 giorni.
Incentivi per le PMI: Le piccole e medie imprese che investono nel territorio possono beneficiare di percentuali elevate di credito d'imposta, in linea con l'obiettivo di rendere l'area del Centro-Sud più competitiva.
Nota sui requisiti: L'agevolazione è valida per progetti di investimento fino a un massimo di 100 milioni di euro per singolo progetto. Le aziende devono trovarsi o insediarsi nelle aree identificate come ZES nel comune di Monsampolo del Tronto.
Posizione strategica: Situato nella zona industriale facilmente accessibile, comoda per le principali arterie stradali, a poca distanza dall'uscita Autostradale della A/14 uscita di San Benedetto del Tronto.
Classe energetica
EP glnr: 26.49 kwh/m³















