Villa in Vendita
Monsampolo del Tronto (AP) - Villa PANORAMICA CON DEPENDANCE E AMPIO GIARDINO
Sogni una residenza di prestigio con vista mozzafiato sui Monti della Laga e del Gran Sasso?
Questa splendida Villa immersa nel verde è la soluzione ideale per chi cerca ampi spazi, indipendenza e privacy.
La proprietà, distribuiti su due livelli è circondata da una corte esclusiva e giardino di circa 1.100 mq, dove insiste una dependance di circa 50 mq, ideale come spazio ospiti o soluzione indipendente.
La Villa è attualmente suddivisa in due unità abitative indipendenti, perfetta per famiglie numerose o per chi desidera due unità abitative separate (es. genitori/figli, affitto).
COMPOSIZIONE DETTAGLIATA:
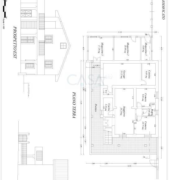
PIANO TERRA : Ingresso su ampio soggiorno con camino, cucinotto, due camere matrimoniali, bagno finestrato con doccia. L’appartamento è circondato da un bellissimo portico di 30 mq.
Completano il piano un grande garage di 40 mq collegato a un pratico fondaco, un bagno e tre magazzini,
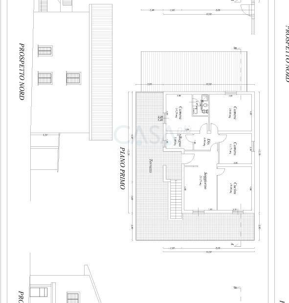
PIANO PRIMO: Accesso indipendente - Ampio salone, cucina abitabile con camino e accesso diretto all'ampia terrazza coperta da tettoia in legno. Zona notte con tre camere matrimoniali e bagno finestrato con mosaico.
DOTAZIONI E FINITURE: La Villa rifinita in stile anni ottanta presenta:
Cappotto termico esterno, Pavimenti in ceramica, Infissi in PVC con doppio vetro, persiane in PVC, , Impianti a norma e funzionanti, Aria condizionata nel disimpegno del reparto notte, Allarme .
Il giardino completamente recintato, molto curato è piantumato con prato, alberi ad alto fusto, ulivi, alberi da frutto e piante ornamentali.
POSIZIONE:
Situata in zona residenziale, tranquilla e riservata, ma a breve distanza dai principali servizi, questa Villa rappresenta la soluzione ideale per chi desidera indipendenza, privacy e una bellissima vista panoramica sulle colline e sulle montagne.
La proprietà dista circa 20' d'auto dal mare, dall'uscita dell'Autostrada A14 di San Benedetto del Tronto e Grottammare
Una residenza esclusiva, dove comfort, natura e panorama si incontrano
Possibilità di acquisto di terreno agricolo confinante con la proprietà ad un prezzo da computare separatamente.
CONTATTI:
Per maggiori informazioni e per organizzare una visita, contattare l'Agenzia Immobiliare Casa Più al numero 338/8271146
Classe energetica
EP glnr: 126.90 kwh/m²











































