Casa singola in Vendita
Colonnella - proponiamo in Vendita Casa singola con giardino e uliveto.
L'immobile in questione è una spaziosa Casa singola situata a Colonnella, in una tranquilla zona panoramica situata a poca distanza dal centro del paese.
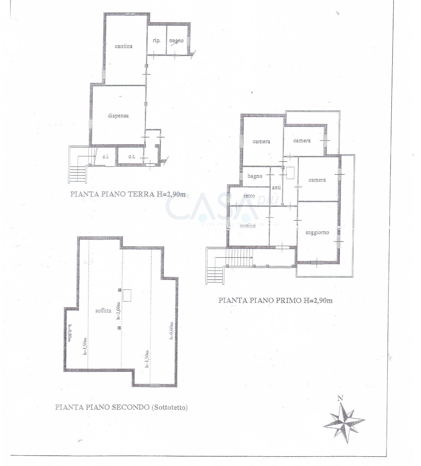
Costruita nel 1985, la casa si sviluppa su tre piani fuori terra con una superficie totale di 494 metri quadrati circondata da un'ampio giardino e da un bell'uliveto per totali 2.800 mq circa .
La proprietà offre ampi spazi interni che risultano così distribuiti: piano terra di 156 mq circa con locale cantina, locale dispensa, ripostiglio, bagno oltre ad un garage di 60 mq circa ed una rimessa di 36 mq; l'abitazione al primo piano di 147 mq, accessibile da scala esterna, si compone di: ampio ingresso, un salone, una spaziosa cucina con camino e retrocucina, disimpegno della zona notte con tre grandi camere da letto un bagno con antibagno (ulteriore locale lavanderia). La casa è circondata su tre lati da balconi perimetrali con vista panoramica che dai monti e dalle colline sconfina verso il mare. Attraverso una scala retrattile si accede ad un sottotetto di 147 mq avente altezza max di 2,60 fino ad arrivare ad un'altezza min di 0,60.
Abitabile da subito la proprietà, si presenta in buone condizioni di conservazione, gli infissi e le finestre in alluminio con vetro singolo garantiscono un'ottima luminosità naturale all'interno della casa, gli impianti, i pavimenti e le porte sono dell'epoca di costruzione.
L'ampio giardino privato, vi permetterà di trascorrere piacevoli momenti all'aria aperta e organizzare cene e feste con amici e familiari in piena tranquillità inoltre vi offre la comodità di ospitare veicoli per gli ospiti o per i mezzi di familiari e amici.
Ideale a soddisfare le esigenze di una famiglia numerosa questa Casa singola offre ampi spazi sia interni che esterni per una vita familiare comoda e funzionale in una zona tranquilla e ben collegata.
Per chi ama coltivare piante e ortaggi è inoltre possibile acquistare un terreno annesso di circa 10.000 mq.
Classe energetica
EP glnr: 175.00 kwh/m²


















