Casa singola in Vendita
Colonnella - zona artigianale -
Casa indipendente in Vendita
Fabbricato realizzato ante 1967 e successivamente ristrutturato, presenta struttura portante in muratura con interni in parte in laterizio
La Casa è disposta su due livelli
- Piano terra allo stato grezzo Catastalmente F/3 con locali rimesse, cantine e laboratori
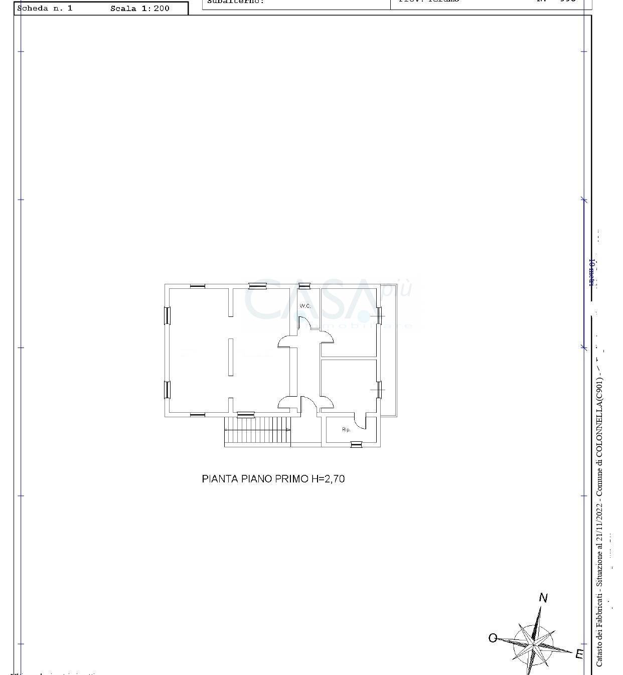
- Piano primo abitativo della superficie di 139 mq circa composto da: ingresso su corridoio, soggiorno/pranzo con camino con affaccio su balcone, cucinotto con finestra, camera matrimoniale sul lato destro, sul lato sinistro troviamo due grandissimi locali collegati tra loro da grandi aperture dove è possibile realizzare quattro camere da letto ed infine un bagno dotato di finestra, una scala retrattile nel corridoio permette l'accesso alla soffitta.
I due piani sono collegati da una scala esterna
Classe energetica
EP glnr: 175.00 kwh/m²








