Studio/Ufficio in Affitto
Monteprandone
Codice: 732
Nella zona Industriale di Centobuchi di Monteprandone a soli 200 mt dell'uscita della superstrada Ascoli-Mare, a 2 Km dal casello Autostradale di San Benedetto del Tronto proponiamo in Affitto palazzina uffici della superficie totale di mq 600.
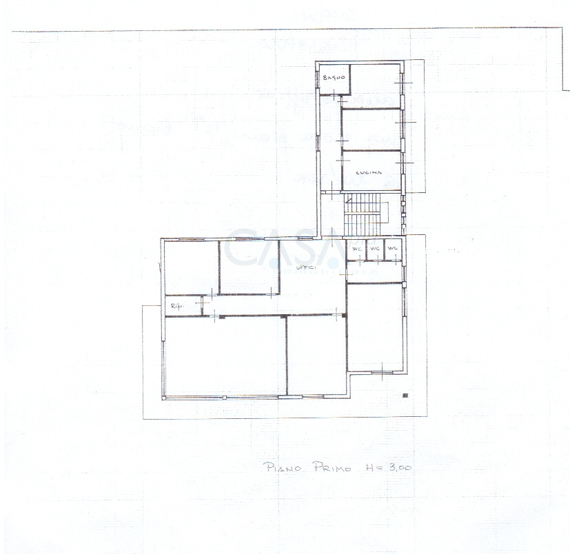
La palazzina uffici è disposta su due livelli di circa 300 mq circa cad. dove al piano primo troviamo i n. 8 uffici per la maggior parte dotati di aria condizionata e vari servizi igienici mentre al piano terra troviamo n. 2 locali ufficio, due ampi locali destinati a mensa e magazzino, adeguati allo svolgimento di attività di deposito o di lavorazione oltre a servizi igienici.
L'immobile risulta recintato con ampia zona di parcheggio.
€ 2.200
Classe energetica
G
EP glnr: 175.00 kwh/m³
Informazioni immobile
Codice 732
Contratto Affitto
Tipologia Studio/Ufficio
Regione Marche
Provincia Ascoli Piceno
Comune Monteprandone
Prezzo € 2.200
Totale mq 600 mq
Bagni 5
Locali 12
Stato conservazione Buono
Mq coperti 600 mq
Riscaldamento Autonomo
Posizione Zona industriale
Nelle vicinanze
Palestre
Centri Benessere
Campi da Calcio
Complessi Sportivi
Campi da Tennis
Piste Ciclabili
Parchi Giochi
Stazione Ferroviaria
Trasporti Pubblici
Asilo
Scuole Elementari
Scuole Medie
Scuole Superiori
Bar
Uffici postali
Centri commerciali
Uffici comunali
Ubicazione immobile



